W świecie nieruchomości pojęcie "mieszkanie rozkładowe" jest niezwykle popularne i często pojawia się w ogłoszeniach. Zrozumienie, co dokładnie oznacza ten termin i jakie cechy charakteryzują ten typ nieruchomości, jest kluczowe dla każdego, kto szuka swojego wymarzonego lokum lub planuje inwestycję. Poznajmy jego definicję i sprawdźmy, dlaczego cieszy się tak dużym uznaniem.
Mieszkanie rozkładowe to układ zapewniający prywatność poznaj jego cechy i zalety
- Kluczową cechą mieszkania rozkładowego jest brak pokoi przechodnich, co oznacza, że do każdego pomieszczenia prowadzi osobne wejście z przedpokoju.
- Taki układ gwarantuje maksymalną prywatność i komfort użytkowania dla wszystkich domowników.
- Mieszkania rozkładowe są bardzo pożądane na rynku nieruchomości, zarówno pierwotnym, jak i wtórnym, szczególnie przez rodziny i inwestorów pod wynajem.
- Główną wadą może być większy metraż zajmowany przez korytarz, co potencjalnie zmniejsza powierzchnię użytkową pokoi.
- Rozpoznasz je na rzucie deweloperskim, sprawdzając, czy każde pomieszczenie ma niezależne wejście z części komunikacyjnej.
Czym jest mieszkanie rozkładowe? Odkryj jego definicję
Mieszkanie rozkładowe to typ nieruchomości, w którym do każdego pomieszczenia czy to pokoju, kuchni, czy łazienki prowadzi osobne wejście bezpośrednio z przedpokoju lub korytarza. To właśnie ta cecha jest jego znakiem rozpoznawczym i kluczową różnicą w stosunku do innych układów. W praktyce oznacza to, że nie musimy przechodzić przez jeden pokój, aby dostać się do drugiego. Taki układ gwarantuje maksymalną prywatność i komfort użytkowania dla wszystkich domowników, co jest niezwykle cenione na rynku nieruchomości.
Przedpokój jako centrum komunikacyjne mieszkania
W mieszkaniu rozkładowym przedpokój lub korytarz pełni rolę prawdziwego centrum komunikacyjnego. To z niego rozchodzą się drogi do wszystkich pozostałych pomieszczeń, tworząc swego rodzaju kręgosłup mieszkania. Dzięki temu rozwiązaniu, każda strefa funkcjonalna czy to sypialnia, salon, kuchnia czy łazienka staje się niezależna. To znacząco wpływa na funkcjonalność, umożliwiając swobodne korzystanie z poszczególnych części mieszkania bez zakłócania spokoju pozostałych mieszkańców. W mojej ocenie, to właśnie ta niezależność jest jednym z największych atutów.
Czym mieszkanie rozkładowe różni się od układu w amfiladzie?
Aby w pełni zrozumieć istotę mieszkania rozkładowego, warto przyjrzeć się jego przeciwieństwu układowi w amfiladzie, czyli mieszkaniu z pokojami przechodnimi. W amfiladzie komunikacja między pomieszczeniami odbywa się bezpośrednio, bez udziału korytarza. Oznacza to, że aby dostać się do jednego pokoju, trzeba przejść przez inny, często salon lub sypialnię.
Takie układy są charakterystyczne dla starszego budownictwa, na przykład pięknych, ale często mniej funkcjonalnych kamienic z początku XX wieku, czy też niektórych mieszkań w blokach z lat 60. i 70. XX wieku. Choć amfilada może mieć swój urok i historyczny charakter, z punktu widzenia współczesnego komfortu i prywatności, jest to rozwiązanie znacznie mniej praktyczne niż mieszkanie rozkładowe.

Zalety mieszkania rozkładowego: dlaczego jest tak pożądane?
Główną i najbardziej oczywistą zaletą mieszkania rozkładowego jest prywatność. Brak pokoi przechodnich oznacza, że każdy mieszkaniec ma swoją własną, niezależną przestrzeń, do której dostęp jest możliwy wyłącznie z części komunikacyjnej. To pozwala na swobodne korzystanie z każdego pomieszczenia, bez obawy o zakłócanie spokoju innych domowników. Wyobraźmy sobie sytuację, gdy jedno z dzieci śpi, a drugie chce przejść do łazienki w układzie rozkładowym nie ma z tym problemu, co w przypadku pokoi przechodnich byłoby niemożliwe bez budzenia śpiącego.
Funkcjonalność i łatwość aranżacji: ustawne i niezależne pokoje
Niezależność pokoi w układzie rozkładowym znacząco ułatwia ich aranżację i zwiększa ogólną funkcjonalność mieszkania. Każdy pokój może pełnić określoną, dedykowaną funkcję sypialni, biura do pracy zdalnej, pokoju dziecięcego czy gabinetu bez kolidowania z ciągami komunikacyjnymi. Nie musimy martwić się o to, że przez nasz salon będzie przechodził ruch, co pozwala na pełne wykorzystanie każdej ściany i każdego kąta. To sprawia, że mieszkania te są zazwyczaj bardzo ustawne i łatwe do umeblowania.
Idealne rozwiązanie pod wynajem: komfort dla najemców
Dla inwestorów na rynku nieruchomości, mieszkanie rozkładowe to prawdziwy skarb. Jest ono szczególnie atrakcyjne pod wynajem, zwłaszcza dla studentów, młodych profesjonalistów czy grup znajomych, którzy chcą dzielić koszty mieszkania. Niezależne pokoje zapewniają każdemu najemcy komfort i prywatność, co jest kluczowe przy wspólnym zamieszkiwaniu. Taka oferta jest znacznie bardziej pożądana niż mieszkanie z pokojami przechodnimi, co przekłada się na większą atrakcyjność oferty i potencjalnie wyższy zysk z inwestycji.
Wygoda dla rodzin z dziećmi i osób pracujących zdalnie
Układ rozkładowy to również strzał w dziesiątkę dla rodzin z dziećmi. Każde dziecko może mieć swój własny pokój, co sprzyja rozwojowi i daje poczucie własnej przestrzeni. Rodzice nie muszą obawiać się, że przechodząc do kuchni, obudzą śpiącego malucha. Podobnie, osoby pracujące zdalnie docenią możliwość wydzielenia cichego, niezależnego biura, w którym będą mogły skupić się na obowiązkach bez zakłóceń ze strony pozostałych domowników. To po prostu rozwiązanie, które wspiera nowoczesny styl życia.
Czy mieszkanie rozkładowe ma wady? Spójrzmy na drugą stronę
Chociaż mieszkania rozkładowe mają wiele zalet, nie są pozbawione wad. Główną z nich jest fakt, że korytarz lub przedpokój, który pełni funkcję komunikacyjną, zajmuje znaczną część metrażu. Oznacza to, że powierzchnia użytkowa samych pokoi może być mniejsza w stosunku do całkowitej powierzchni mieszkania, niż w przypadku układów otwartych. Czy jest to wada? Moim zdaniem, to raczej konieczny kompromis, który płacimy za wspomnianą prywatność i funkcjonalność. Dla wielu osób, ten "stracony" metraż na korytarz jest ceną, którą warto zapłacić za komfort.
Mniejsze poczucie otwartej przestrzeni w porównaniu do nowoczesnych planów
W dobie popularności otwartych przestrzeni, takich jak aneks kuchenny połączony z salonem, mieszkanie rozkładowe może sprawiać wrażenie mniej przestronnego. Ze względu na podział na mniejsze, zamknięte pomieszczenia, brakuje tu często efektu "wow", który dają duże, otwarte salony. Jeśli ktoś marzy o loftowym charakterze wnętrza lub uwielbia przestronne, połączone strefy dzienne, układ rozkładowy może nie być dla niego idealny. Warto jednak pamiętać, że to kwestia indywidualnych preferencji i stylu życia.
Ryzyko długich i niefunkcjonalnych ciągów komunikacyjnych
W niektórych projektach deweloperskich, aby uzyskać pełen rozkład pomieszczeń, architekci mogą projektować korytarze, które są niestety długie, wąskie i trudne do efektywnego zagospodarowania. Taki korytarz może być nie tylko nieestetyczny, ale także niepraktyczny, utrudniając ustawienie mebli czy stworzenie dodatkowej przestrzeni do przechowywania. Zawsze warto dokładnie obejrzeć rzut mieszkania i ocenić proporcje ciągów komunikacyjnych, aby uniknąć rozczarowania.

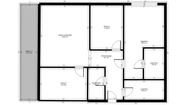
Jak rozpoznać mieszkanie rozkładowe? Poradnik dla kupujących
Rozpoznanie mieszkania rozkładowego na rzucie deweloperskim jest stosunkowo proste, jeśli wiemy, na co zwrócić uwagę. Oto kluczowe elementy:
- Sprawdź wejścia do pokoi: Upewnij się, że do każdego pokoju prowadzą drzwi bezpośrednio z przedpokoju lub korytarza.
- Brak drzwi między pokojami: Jeśli na planie nie ma drzwi łączących dwa pokoje ze sobą (np. salon z sypialnią), to dobry znak.
- Wyraźna strefa komunikacyjna: Zwróć uwagę na wyraźnie zaznaczoną przestrzeń przedpokoju lub korytarza, która łączy wszystkie pomieszczenia.
- Dostęp do kuchni i łazienki: Zarówno kuchnia, jak i łazienka powinny mieć niezależne wejścia z korytarza, a nie np. z salonu.
Oznaczenia na planach, które mogą zdradzić układ mieszkania
Na planach deweloperskich, oprócz wspomnianych drzwi i wyraźnych linii korytarzy, warto szukać także innych subtelnych wskazówek. Czasami brak jakichkolwiek oznaczeń drzwi między dwoma pokojami, ale obecność wyraźnej ściany, może sugerować układ przechodni, jeśli nie ma alternatywnego wejścia z korytarza. Z kolei jasno wytyczone ciągi komunikacyjne, często oddzielone od reszty pomieszczeń, to niemal pewny znak, że mamy do czynienia z mieszkaniem rozkładowym.
Czym jest "pełny rozkład" i dlaczego warto o niego dopytać?
W ogłoszeniach często pojawia się termin "pełny rozkład". Oznacza on, że absolutnie wszystkie pomieszczenia wliczając w to wszystkie pokoje, kuchnię i łazienkę mają niezależne wejścia z przedpokoju lub korytarza. Warto o to dopytać dewelopera lub pośrednika, ponieważ czasami zdarzają się mieszkania "częściowo rozkładowe", gdzie np. jeden z pokoi (najczęściej sypialnia) ma wejście z salonu, a pozostałe są już rozkładowe. Taka subtelna różnica może znacząco wpłynąć na komfort użytkowania, dlatego zawsze zalecam precyzyjne wyjaśnienie tego aspektu.
Mieszkanie rozkładowe na rynku pierwotnym i wtórnym
Mieszkania rozkładowe są obecnie standardem w nowym budownictwie. Deweloperzy doskonale zdają sobie sprawę z preferencji klientów i chętnie oferują ten układ, ponieważ spełnia on oczekiwania większości kupujących, jest uniwersalny i łatwy w sprzedaży. Również na rynku wtórnym, mieszkania rozkładowe cieszą się ogromną popularnością i zazwyczaj szybko znajdują nabywców. To po prostu sprawdzony i ceniony układ, który z perspektywy dewelopera minimalizuje ryzyko trudności ze sprzedażą.
Układ rozkładowy w blokach z wielkiej płyty: spuścizna PRL
Co ciekawe, układ rozkładowy jest również bardzo często spotykany w budownictwie z wielkiej płyty, pochodzącym z okresu PRL. W tamtych czasach dążono do maksymalnej funkcjonalności, standaryzacji i efektywnego wykorzystania przestrzeni, co często skutkowało właśnie takimi układami. Mimo że bloki z wielkiej płyty mają swoje wady, to rozkładowy charakter mieszkań jest jednym z ich niezaprzeczalnych atutów, który przetrwał próbę czasu i nadal jest doceniany przez mieszkańców.
Czy mieszkania rozkładowe są droższe od przechodnich?
Zazwyczaj tak. Ze względu na ich pożądany charakter, funkcjonalność i zapewnianą prywatność, mieszkania rozkładowe często osiągają wyższe ceny na rynku nieruchomości, zwłaszcza na rynku wtórnym. Inwestorzy i rodziny są skłonni zapłacić więcej za komfort i uniwersalność, jaką oferuje ten układ. Różnica w cenie może być szczególnie widoczna w porównaniu do mieszkań z pokojami przechodnimi, które są zazwyczaj tańsze ze względu na mniejszą funkcjonalność i trudności w aranżacji.
Dla kogo mieszkanie rozkładowe będzie strzałem w dziesiątkę?
Mieszkanie rozkładowe to idealne rozwiązanie dla rodzin z dziećmi oraz par planujących powiększenie rodziny. Możliwość wydzielenia osobnych stref dla każdego członka rodziny, zapewnienie prywatności i spokoju, to czynniki, które znacząco podnoszą komfort życia. W takim mieszkaniu każdy znajdzie swoje miejsce, co jest nieocenione w codziennym funkcjonowaniu.
Inwestorzy kupujący nieruchomość na wynajem
Jak już wspomniałam, inwestorzy, którzy kupują nieruchomość z myślą o wynajmie, powinni zdecydowanie rozważyć mieszkanie rozkładowe. Łatwość wynajmu pojedynczych pokoi, wysoki popyt na tego typu oferty i możliwość uzyskania stabilnego dochodu czynią z niego bardzo rentowną inwestycję. To po prostu bezpieczny wybór, który minimalizuje ryzyko pustostanów.
Przeczytaj również: Mieszkanie do remontu: Jak wycenić i sprzedać z maksymalnym zyskiem?
Osoby ceniące sobie prywatność i wyraźny podział stref w domu
Podsumowując, ten typ mieszkania jest doskonały dla każdego, kto ceni sobie wyraźny podział funkcji pomieszczeń i możliwość zachowania prywatności. Jeśli nie lubisz otwartych przestrzeni, a wolisz mieć jasno wydzielone strefy do pracy, odpoczynku i życia towarzyskiego, mieszkanie rozkładowe z pewnością spełni Twoje oczekiwania. To układ, który po prostu daje poczucie porządku i komfortu.






